東海4県【愛知】【岐阜】【三重】【静岡】賃貸倉庫検索サイト

 

受付時間 8:30〜17:30(月〜金)

0564-43-1115

空き物件情報募集中!

Home > 条件から検索 > 倉庫詳細

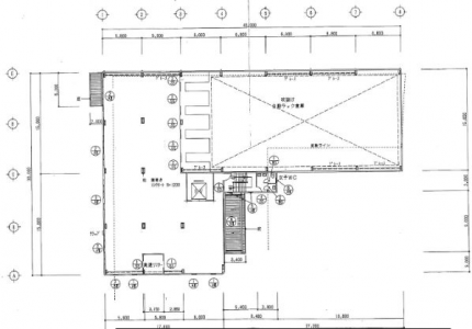
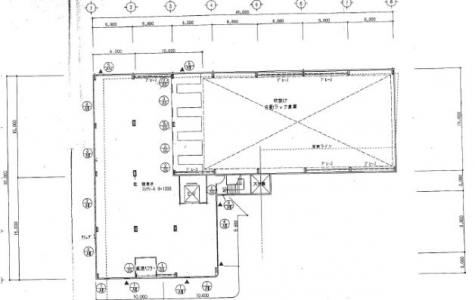
尾張の貸し倉庫

愛知県小牧市 貸倉庫

賃貸条件
物件番号 ai04701294
契約形態 賃貸
所在地 愛知県小牧市
倉庫種別 指定無し
坪数 870坪 (2876.1m²)
時期 相談
建物構造 3階建2棟
条件
事務所
駐車場
コメント

まずはお探しの物件をお問い合わせください。

0564-43-1115

受付時間 8:30〜17:30(月〜金)

倉庫のお問い合わせ
トイレ
・・・トイレのある物件
クレーン
・・・クレーンのある物件
事務所
・・・事務所のある物件
駐車場
・・・駐車場のある物件
低床
・・・低床物件
高床
・・・高床物件
エレベーター
・・・エレベーターのある物件
シャッター
・・・電動シャッターなど
大型車可
・・・大型車が搬入できる
リフト
・・・フォークリフト
ホイスト
・・・ホイストのある物件
1000坪以上
・・・1000坪以上の物件
寄託推奨
・・・寄託作業を得意とする物件
24H
・・・24時間利用できる物件
4t車以下可
・・・4t以下の車、搬入可能

ロジコのおすすめ物件

愛知県西尾市

346坪

静岡県浜松市西区

400坪

愛知県岩倉市

788坪

愛知県瀬戸市

145.24坪

Copyright (C) 2015 Logics All Rights Reserved.